M to Z Design
I am a former medical doctor with over twenty years of professional experience. While I have always been dedicated to promoting physical health and well-being, I have long had a deep passion for interior design. I firmly believe that thoughtful and well-executed design can significantly contribute to emotional and mental well-being. Just as people seek medical professionals to care for their physical health, I believe that a well-designed space is essential for supporting mental and emotional balance. This belief has inspired me to pursue a career in interior design, where I hope to create environments that bring comfort, harmony, and healing to those who experience them.
My goal in design is to create a warm, simple, clean and friendly environment that brings more peace to people’s lives and contributes to their mental and physical well-being.
8
HAND RENDERING
Skills Highlighted
Perspective renderings, shading, grayscale, color, graphite, pen & ink, marker
10
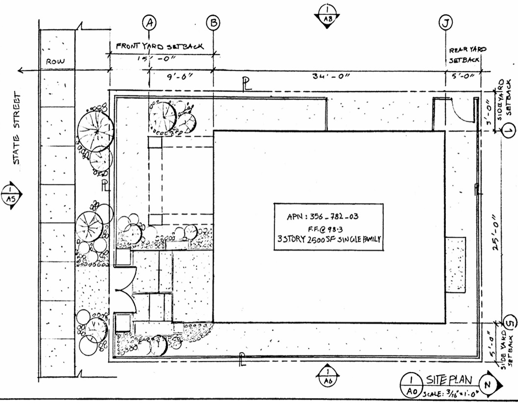
BASIC ARCHITECTURAL DRAFTING BUILDING SET
First Second Third & Roof Plan
East & North Elevation
West & South Elevation
Section View
4
Kitchen Design
Floor plan & Materials
Designed with 2020 design program and rendered.
10
Hotel Lobby Design
Floor plan & Materials
Designed with 2020 design program and rendered.
Experinces
I hope to create environments that bring comfort, harmony, and healing to those who experience them.
HAND RENDERING
Skills Highlighted
Perspective renderings, shading, grayscale, color, graphite, pen & ink, marker
BASIC ARCHITECTURAL DRAFTING
First Second Third & Roof Plan
East & North Elevation
West & South Elevation
Section View
“I believe that a well-designed space is essential for supporting mental and emotional balance.”
M to Z design
Mahnaz Zamani
